





Listing Office: RJ Sears Real Estate Investmen
Attribution contact:
ronsears@rjsears.com
Nearby Schools
Avon High SchoolHigh School
Description
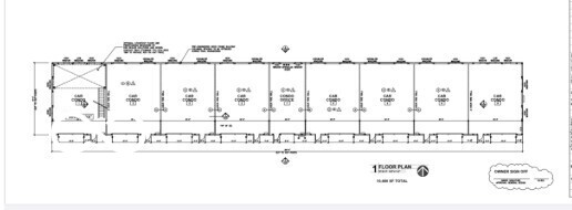
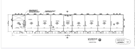
LAND FOR SALE WITH INCOME Exceptional Development Opportunity in Avon, Indiana Discover a rare chance to shape a distinctive parcel of land located just south of Rockville Road, right in the vibrant heart of Avon. This site has been recently surveyed and professionally engineered, offering a solid foundation for multiple buildings to be developed. Whether you're envisioning commercial spaces, residential units, or a mixed-use project, this property is primed for transformation. With its strategic location, strong infrastructure groundwork, and flexible development potential, this is an ideal investment for builders, developers, or visionaries looking to make a lasting impact in one of Hendricks County's most dynamic communities. See Attached Site Design Tailored for Municipal Approval The proposed building layout has been thoughtfully designed to align with the town of Avon's development standards and approval criteria. From setbacks and access points to utility planning and structural footprint, every element reflects a commitment to compliance and community integration. This ensures a smoother path through the approval process and positions the project for long-term success.
Location
Listed By
Similar listings
MLS# 22094621
ACTIVE
$3,000,000
Listing Office: Compass Indiana, LLC
MLS# 22073293
ACTIVE
$3,000,000
Listing Office: F.C. Tucker Company
MLS# 22022967
PENDING
$2,995,000
Listing Office: RE/MAX Realty Group
MLS# 22060445
ACTIVE
$2,925,000
Listing Office: Berkshire Hathaway Home
MLS# 22089582
ACTIVE
$2,700,000
Listing Office: Dan Moore Real Estate Services
MLS# 22036632
ACTIVE
$2,700,000
Listing Office: 101 Realty Group
MLS# 22051984
ACTIVE
$2,500,000
Listing Office: Priority Realty Group
MLS# 22034539
ACTIVE
$2,500,000
Listing Office: Kaiser Real Estate Corp.
MLS# 22033393
ACTIVE
$2,500,000
Listing Office: eXp Realty, LLC
MLS# 22060481
ACTIVE
$2,500,000
Listing Office: Keller Williams Indy Metro NE
MLS# 22083062
ACTIVE
$2,500,000
Listing Office: RE/MAX Realty Group
No similar listings found
Unfortunately, we don't have any similar listings at the moment. Please remove or change some of the selected filters.
Information Deemed Reliable But Not Guaranteed. © Metropolitan Indianapolis Board of REALTORS®. Updated: 17th April, 2026 11:10 PM (UTC)






















































